Home
About Us
Team
Portfolio
Contact Us
News and Jobs
Home
About Us
Team
Portfolio
Contact Us
News and Jobs
Home
About Us
Team
Portfolio
Contact Us
News and Jobs
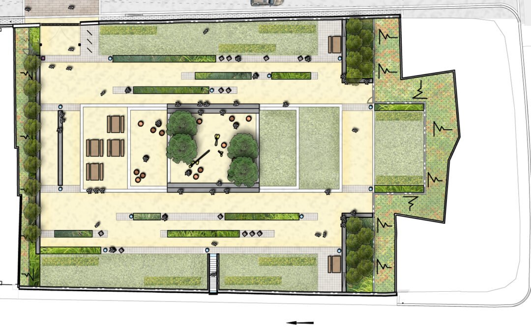
Greengate
by
tpmlandscape
|
Feb 10, 2021
Greengate